Febrer-Rousseau

Agence
Logements et halle commerçante

Logements et halle commerçante

Gujan-Mestras
Date Concours en 2021
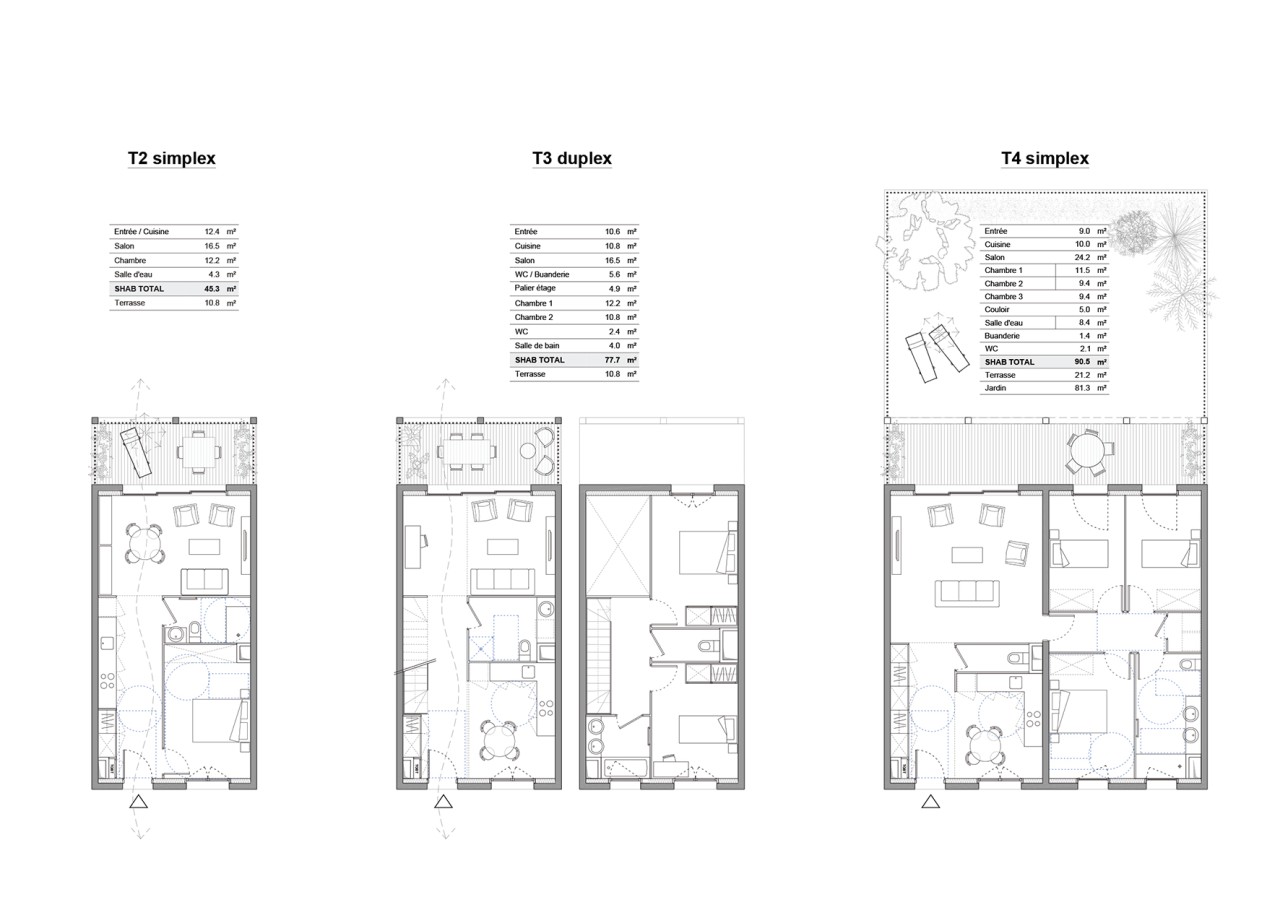
Programme Création d’une halle commerçante et construction de 30 logements sociaux et 44 logements en accession libre avec parking souterrain de 81 places
MOA Mixcité
Mandataire Febrer-Rousseau (Architecte Mandataire)
Mission Esquisse
Surface 4290 m² construction neuve + 1350 m² aménagements extérieurs
Budget 9,1 M € HT (2 100 € HT/m² sdp)
Détails Requalification urbaine, structure bois, ventilation naturelle, réemploi
Perpectives Naska